0 KASPIAN Court, Aptos, CA 95003

Offered at $525,000

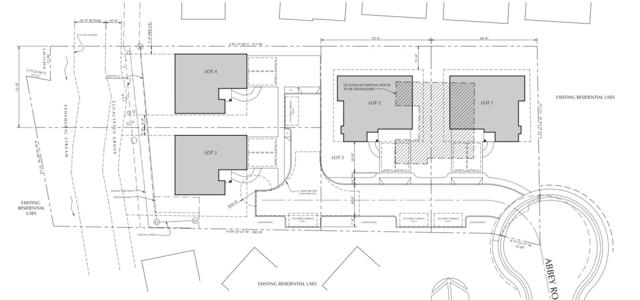
Attention Investors & Developers! This is an Incredible Opportunity! This is Lot 2 of Recently Split 4 Parcels. Preliminary Plans Are Available and Can Be Approved Quickly if Desired. Seller has Completed Laterals Including Gas. Seller Can Have Rough Driveways and Finished Pavement Completed. Buyer can Purchase Individually or Together! All Lots for Sale Now! Check Kaspian Court Listings! Highly Rated Soquel High School! Short Distance to Capitola Village, Cabrillo College, and New Brighton State Beach!