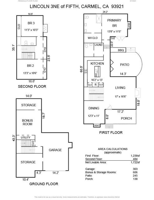
0 Lincoln 3 NE of 5th Street, Carmel, CA 93921

3 BD | 3 Baths | 1,722 SQ/FT

Offered at $4,750,000

It has it all! This newly constructed 3 bedrooms and 2.5 baths, craftsman style home, is designed by Thomas Bateman Hood. The property is steps from the center of Carmel Village, with views of the water and a long list of amenities, that make this a truly unique property. There is lots of attention to details with coffered and wood ceilings, American white oak wood floors, radiant heating throughout, solar energy system with battery back-up, two Tesla wall charges, lots of built in storage and bonus basement rooms in the oversized garage, outdoor kitchen and the list goes on. Come and experience this well-crafted home.