The Yeilding Team
The Yeilding Team
About
Properties
Search
Sold
Contact
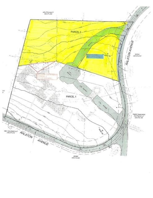
0 Ralston Avenue, Hillsborough, CA 94010
Offered at $6,795,000
Newly subdivided, approximately 1.0 acre parcel in a premier Hillsborough location. Sweeping San Francisco Bay and Skyline views. Tennis court and pool sites.
request info
send to a friend
share this property