16132 Nelson, Westminster, CA 92683

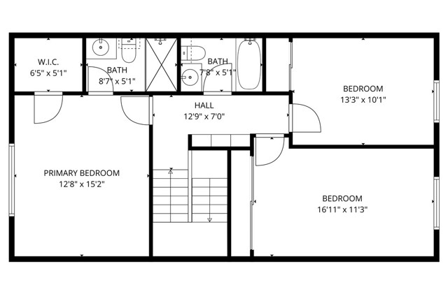
4 BD | 4 Baths | 2,357 SQ/FT

Offered at $1,399,767

Gorgeous home at the end of a quiet Cul-de-Sac with newer light & neutral, yet warm paints, Luxurious Plank flooring & trims. Safe street for children of all ages, with wonderful, helpful neighbors, only 7 miles from the beach and Pacific ocean. Many upgrades and creature comforts inside, like: remodeled bathrooms with natural stones, some newer appliances, custom wrought iron railing. The large Primary bedroom with ensuite has a lot of room in its Walk-in closet. There is plenty of linen cabinets to handle all 4 bedrooms & bathrooms. The closet doors have been removed from the 4th bedroom downstairs, currently being used as a den. The 5th bedroom down, with a 3/4 bath is perfect for guests, mother in-law or maid/nanny quarters. Plus, there's another 3/4 bath down. The home stays cool all summer, with all Dual-Paned Windows, rare AC and Auto-Attic fans. In the winter there's a cozy fireplace to cuddle up with a book and/or glass of wine. Nice patios off the back and dining room lead to just enough lawn area to enjoy, without tying up your whole weekend for yard work. The price and the decor leave a little room for your own personalization. Close to the freeway, shopping, dining and great schools. Welcome to your new home.