2606 Paul Minnie Avenue, Santa Cruz, CA 95062

3 BD | 1 Baths | 1,260 SQ/FT

Offered at $1,200,000

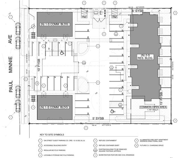
The proposed development site offers a highly promising opportunity for a mixed-use project that integrates modern residential apartments with vibrant commercial spaces. The tentative plan include 15 units apartment and 2 commercial buildings.