31 Ivy Dr, Orinda, CA 94563

4 BD | 4 Baths | 2,348 SQ/FT

Offered at $2,195,000

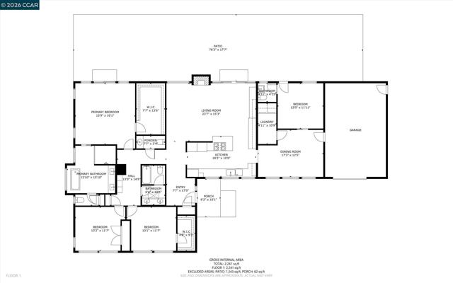
Set back from Ivy Drive, this single-level mid-century modern home offers style, comfort, and a prime Orinda location moments from Del Rey Elementary, Orinda Intermediate School and Miramonte High School. Featuring 4 bedrooms, 2 full and 2 half baths, and 2,348 sq ft. Hickory floors span the main living areas and one bedroom, with new carpet in the others. The spacious primary suite includes a walk-in closet and spa-like bath with a Victoria + Albert soaking tub, dual-head shower, heated tile floors, and double vanity. California Closets in three bedrooms; bathrooms feature Caesarstone counters. Family room with stunning fireplace, built-ins, and hardwired Bose soundbar. Kitchen offers Caesarstone counters, island seating, stainless steel appliances including French door refrigerator, double ovens, new gas cooktop, wine fridge, and pet station. Backyard by Garden Lights features sport court, raised vegetable beds, and outdoor kitchen with Neolith counters, wood burning pizza oven, BBQ, fridge, fire pit, and space for dining under a pergola. Owned solar and foam roof for energy efficiency. A must see!