4714 16 Arizona St, San Diego, CA 92116

| 0 SQ/FT

Offered at $2,499,000

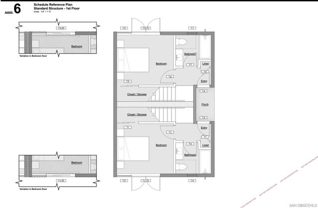
Fully occupied and income-producing, the Arizona Street parcels at 4712 & 4714–16 Arizona St offer a rare 23,000 SF development opportunity in the heart of University Heights. This double-lot site presents a compelling blend of stable in-place income and long-term redevelopment potential in one of San Diego’s most desirable infill neighborhoods. The property currently generates $8,125/month from a remodeled single-family home and a well-maintained duplex. Much of the site is dedicated to surface parking, creating a clear path for higher-density residential development. Plans have been submitted to the City of San Diego for 18 two-story ADU townhome units (nine duplex-style buildings), streamlining the path for a buyer to execute on a shovel-ready strategy—or adapt the site for their own vision. Located within a Transit Priority Area and zoned RM-1-1, the site benefits from reduced parking requirements and enhanced density options. This site is available individually or as part of a larger 3.14-acre portfolio when combined with the adjacent 2436 Adams Avenue property, which features an additional 18 entitled units. Together, the assemblage offers 36 proposed units across three prime parcels. Whether acquired separately or as part of a larger play, this is a standout opportunity for developers and investors seeking immediate income with entitlement upside in central San Diego.