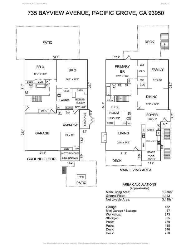
735 Bayview Avenue, Pacific Grove, CA 93950

3 BD | 3 Baths | 3,118 SQ/FT

Offered at $3,495,000

Enjoy dynamic Monterey Bay and golf course views from your living room, kitchen, breakfast nook, enlarged front deck, and flex room - perfect for a home office, art studio, or workout space! This thoughtfully remodeled home features an open floor plan with 900 sq ft of smart additions. The primary bedroom and bath were remodeled and include two walk-in closets. Family Room off Dining offers access to the sunny 2nd floor deck. The lower level offers two guest beds and full bath along with oversized laundry room and hobby room. Gather friends on the lower-level entertainment patio with TV and BBQ area off the expansive yard! Or unwind around the front yard fire pit with those same incredible views. The garage workshop has been reimagined to include a perfect retreat space plus the added motorcycle or bike garage provides excellent storage. Downtown shopping and restaurants are an easy half mile walk. This home seamlessly blends location, comfort, functionality, and views!