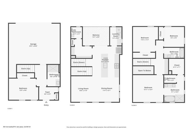
951 Arrowleaf Place, San Jose, CA 95131

4 BD | 4 Baths | 1,872 SQ/FT

Offered at $1,398,000

Nestled in the desirable Orchard Park community of North San Jose, this beautifully maintained end-unit townhouse offers a stunning open floor plan filled with natural light. Perfect for entertaining and everyday living, this thoughtfully designed 2016 residence combines modern elegance with practical comfort. The spacious living room features recessed lighting, large windows, and a bright and welcoming atmosphere. The gourmet kitchen boasts top-of-the-line stainless steel appliances, custom cabinetry, slab quartz countertops, and a spacious island ideal for large gatherings. The luxurious master suite offers a walk-in closet and an elegant bath with dual sinks and a large glass shower stall, providing a private retreat. Distinctive features include new designer carpet, central heat & A/C, tankless water heater, recessed lighting throughout, EV charger, attached two-car garage and a convenient guest suite with a full bath on the ground floor. Located in an incredible area walking distance to Sprouts, H Mart, Golf Course, and local restaurants. Minutes away from Nvidia, Google, Amazon, and major high-tech campuses, with easy access to BART, VTA, and highways 101, 880 & 680. Enjoy the ultimate convenience of modern Silicon Valley living! Your dream home awaits!